Architecte
Bellière Christine, Centre de Recherches d'Architecture et d'Urbanisme, Cornesse Jean-Claude, Dethier Daniel, Englebert Jean
Date de réalisation
1984
Typologie
Commerces
Maître d'ouvrage

Son Excellence le cheikh Faisal bin Thani bin Faisal Al Thani

Adresse
Adresse précise inconnue
État du projet

Projet réalisé

Fonds d'archives
Dethier Daniel (1956)
Description du dossier

Contient 9 documents

Auteur, date de la notice
Virgil Decrouy, 2025

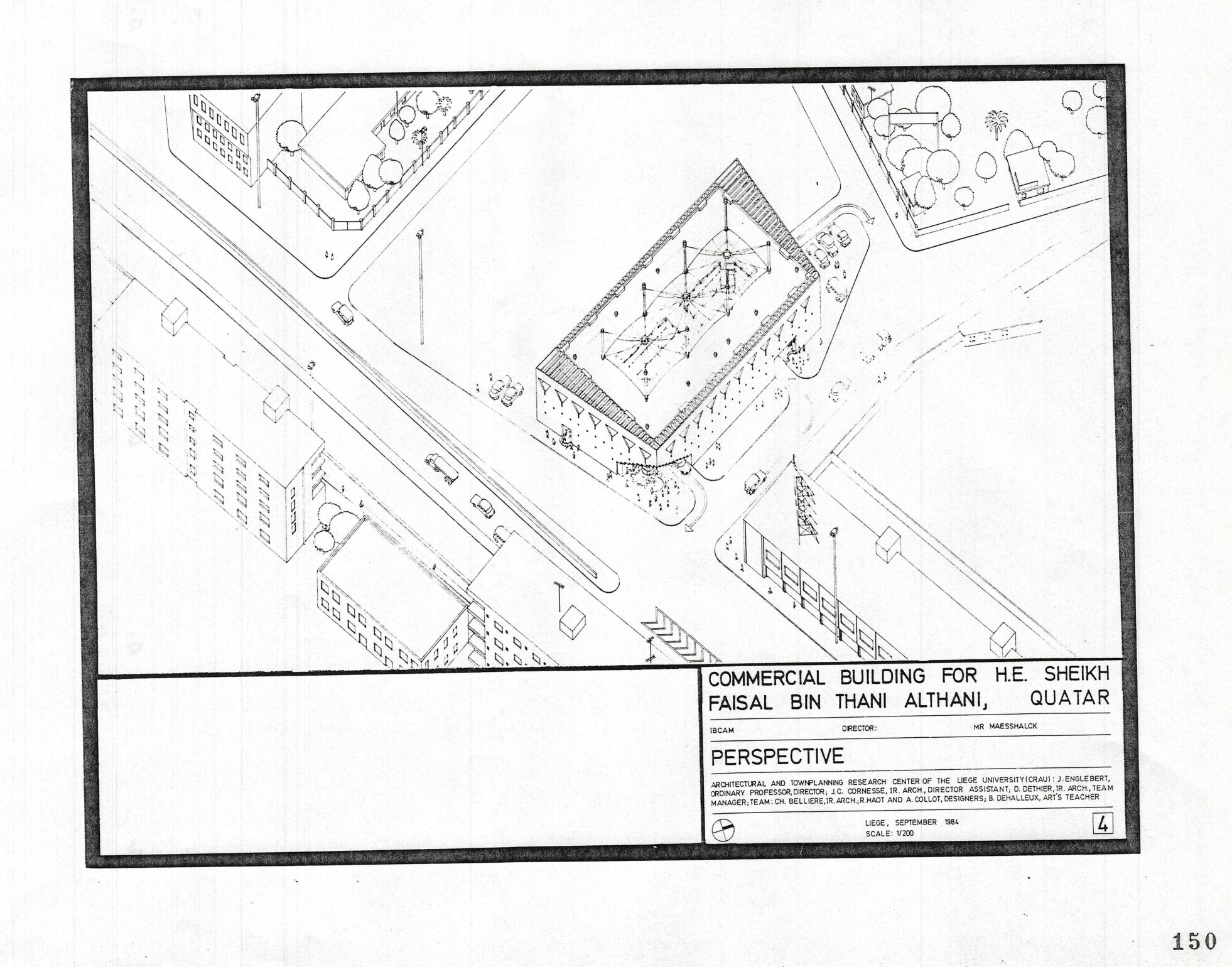
Centre commercial à Doha

Le CRAU (Centre de Recherches d’Architecture et d’Urbanisme) est fondé par le professeur Jean Englebert en 1967. Il y mène une production architecturale qui sert de support au travail de recherche au sein de l’Université de Liège. Le CRAU voit passer en son sein de nombreux architectes, notamment, pour ce projet, Jean-Claude Cornesse, ingénieur architecte, en tant qu’assistant de direction et Daniel Dethier, ingénieur architecte, en tant que chef d’équipe. La genèse du projet de centre commercial à Doha remonte à 1984 et constitue un exemple des collaborations internationales pour le CRAU. Commandité par Son Excellence Faisal bin Thani bin Faisal Al Thani, le centre commercial de 1.450m2 au sol se développe autour d’une cour intérieure. Le projet compose avec le contexte climatique particulier de Doha en occultant l’ensoleillement direct grâce aux trois toiles qui couvrent la cour et à un recul des fenêtres de 1m50 par rapport à la façade. Ces dernières permettent d’attirer le regard depuis l’autoroute voisine grâce à un jeu de pleins et de vides recréant en négatif les arcs en ogives locaux ici réinterprétés.